Nieuw
Appartementsgebouw
Mottantstraat 31, 9300 Aalst
€ 575.000
  • 5
  • 427 m²
  • 2.327 m²
  • garages

Unieke investeringseigendom in hartje Hofstade-Aalst!

Unieke investeringseigendom in hartje Hofstade-Aalst!

Dit appartementsgebouw (in eindafwerking) met 3 woongelegenheden, elk met apart adres en huisnummer, biedt een uitstekende kans voor investeerders en particulieren.

De appartementen zijn volledig nieuw, inzake inrichting, o.a. ingerichte keuken met toestellen, nieuwe elektriciteits- en waterleidingen. Volledig in nieuwstaat en nog niet in gebruik of verhuur.

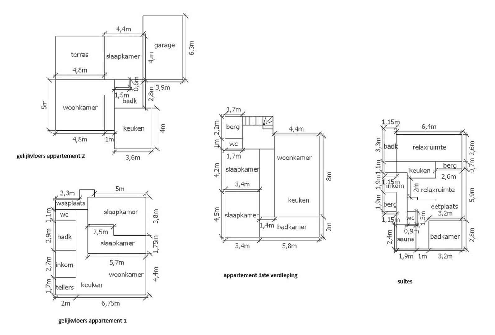
Op het gelijkvloers vindt men 2 units:

Het eerste appartement is als volgt ingedeeld: een inkomhal, een ruime woonkamer met open keuken, 2 slaapkamers, een badkamer (inloopdouche en wastafel), een apart toilet en berging.

Het tweede appartement is voorzien van een woonkamer met zicht op ruim terras, een met moderne ingerichte ruime keuken, een badkamer (inloopdouche, wastafel), een slaapkamer, een apart toilet en een berging. Vanuit de keuken, heeft men toegang tot een ruime kelder. Dit appartement beschikt over een eigen garage.

Het derde appartement bevindt zich op de eerste verdieping van het hoofdgebouw. Dit appartement heeft twee slaapkamers, een woonkamer met open keuken en een badkamer met inloopdouche, bad en dubbele wastafel. Er is ook een apart toilet en een berging. Dit appartement beschikt ook over een extra zolderruimte (met valluik).


Achteraan bevindt zich nog een extra tuin, met bomen, met oppervlakte van ongeveer 700 m2.

Er zijn tevens parkeerplaatsen voorzien voor het hoofdgebouw.

Goedgekeurde plannen en EPC ter inzage.

Gelegen nabij centrum Hofstade met winkels en scholen op wandelafstand en kortbij fietspad richting Aalst.

Voor meer info en/of een bezoek, contacteer ons via jonas@immotijl.be of 0477 17 44 20.

In detail

Financieel

prijs
€ 575.000
beschikbaarheid
Vanaf akte
onder btw stelsel
nee
kadastraal inkomen
€ 2.193
opbrengsteigendom
nee

Ligging

ligging
Woonkern
omgeving school
ja
omgeving openbaar vervoer
ja
omgeving winkels
ja
omgeving autosnelweg
ja

Comfort

aansluiting riolering
ja
aansluiting water
ja
kabeltelevisie
ja

Gebouw

bewoonbare opp.
427,00 m²
constructie
Open
bouwjaar
1977
verdieping(en)
1

Terrein

perceel opp.
2.327,00 m²
tuin
ja

Energie

dubbel glas
ja
verwarming
Stookolie
type verwarming
Individueel

Technieken

elektriciteit
ja
telefoonbekabeling
ja

Garages / parking

garages / parking
1
binnenparking
1
buitenparking
5

Indeling

kelder
ja
slaapkamers
5
slaapkamer 1
17 m²
slaapkamer 2
14 m²
slaapkamer 3
15 m²
slaapkamer 4
16 m²
terras
ja
bureau
ja
woonkamer
35 m²
keuken
11 m², Volledig geïnstalleerd

Stedenbouwkundige informatie & ruimtelijke ordening

overstromingsgevoeliggebied
Niet gelegen in een overstromingsgevoelig gebied
g-score
A
p-score
A
kadaster sectie
A
kadaster nummer
1057B
kadaster opp.
2327
Uw makelaar
Afbeelding
Jonas Nelis
0477 17 44 20