Nieuw
Bouwgrond
Streekbaan 4+, 9280 Lebbeke
€ 275.000
  • 740 m²

Ruime bouwgrond voor open bebouwing te Wieze!

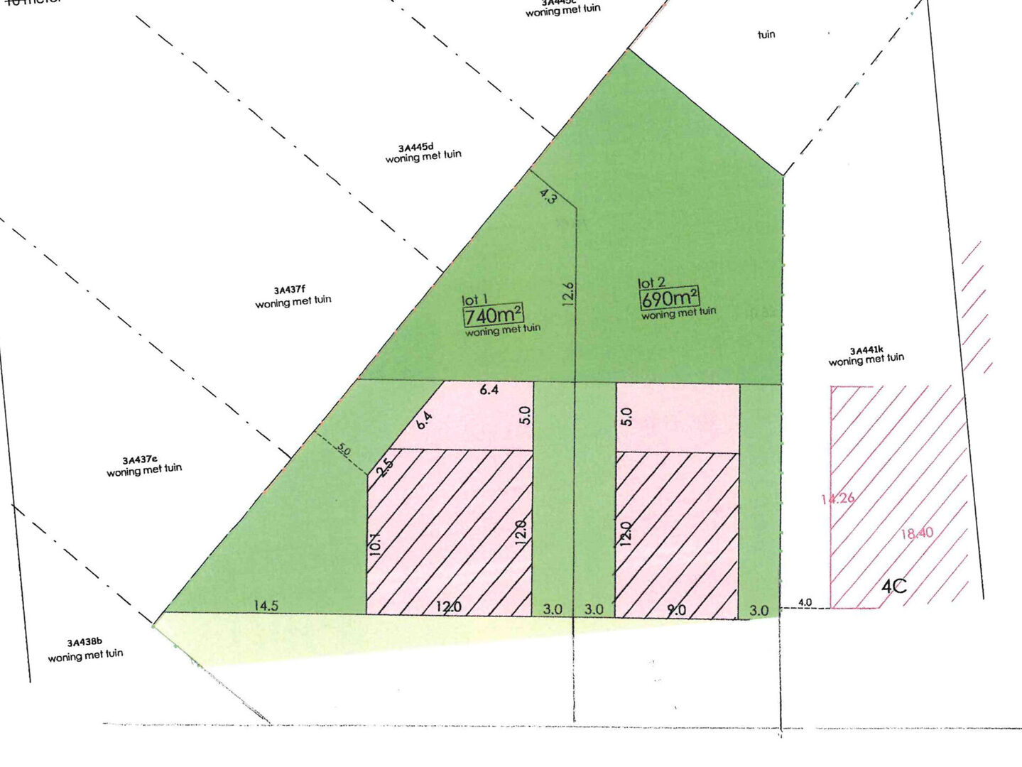
Dit mooi perceel van ongeveer 740 m² (zie plan en luchtfoto, lot 1), de straatbreedte bedraagt ongeveer 21 meter. Deze grond is gelegen in een goedgekeurde verkaveling en biedt een uitstekende kans voor het realiseren van een open bebouwing.

De maximale bouwdiepte bedraagt 17 meter op het gelijkvloers en 12 meter op de verdieping, gemeten vanaf de verplichte voorbouwlijn en rekening houdend met een zijdelingse bouwvrije strook van 3 meter (rechts) en 5 meter (links). Meer info omtrent de bouwmogelijkheden te verkrijgen op kantoor. Het naastgelegen perceel (lot 2) is eveneens beschikbaar!

Goed gelegen in een aangename en rustige omgeving, op een vlot bereikbare locatie nabij het dorpscentrum. Wenst u graag meer info? Neem gerust contact op met Tijl via tijl@immotijl.be of bel 0477 44 86 11.

In detail

Financieel

prijs
€ 275.000
beschikbaarheid
Vanaf akte
onder btw stelsel
nee
opbrengsteigendom
nee

Ligging

ligging
Rustig
omgeving school
ja
omgeving openbaar vervoer
ja
omgeving winkels
ja
omgeving autosnelweg
ja

Terrein

perceel opp.
740,00 m²
terreindiepte
37,00 m

Stedenbouwkundige informatie & ruimtelijke ordening

bestemming
Woongebied
bouwvergunning
nee
verkavelingsvergunning
ja
voorkooprecht
nee
vonnissen
nee
p-score
A
kadaster opp.
740
bodemattest
ja
Uw makelaar
500 832
Tijl Jansegers
0477 44 86 11