- 2
- 265 m²
- 999 m²
- garages
Energiezuinige bungalow met garage nabij centrum Aalst!
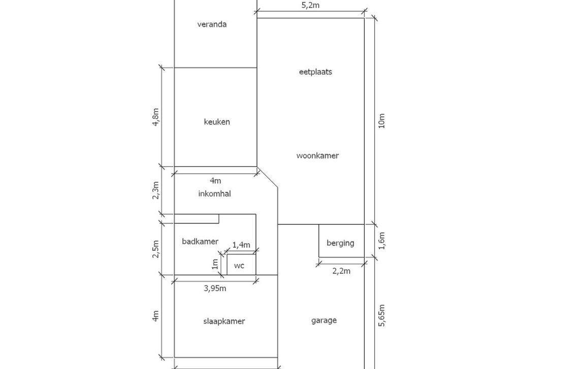
Deze zeer ruime en goed onderhouden open bebouwing verwelkomt u met een inkomhal met vestiaire en gastentoilet. De lichtrijke woonkamer met karaktervolle schouw sluit naadloos aan op de ruime keuken met eetplaats. Aansluitend bevindt zich een prachtige veranda die uitkijkt op de tuin. Verder beschikt de woning over een grote slaapkamer en een badkamer uitgerust met bad, douche, lavabomeubel en toilet.
Achteraan kan u genieten van een mooi aangelegde westgerichte tuin met terras en een praktische tuinberging. Extra pluspunten zijn de oprit en de inpandige garage met automatische poort, die samen zorgen voor optimaal comfort.
De zolderverdieping biedt bovendien interessante uitbreidingsmogelijkheden, bijvoorbeeld om extra slaapkamers te creëren.
De woning is niet alleen goed onderhouden en asbestveilig, maar ook energiezuinig met een EPC-label B. Daarnaast is ze reeds voorzien van hoogrendementsbeglazing (deels met elektrische rolluiken), zonnepanelen en centrale verwarming op aardgas met condenserende ketel. Neem alvast een kijkje via de virtuele rondleiding!
Gelegen op een vlot bereikbare locatie net buiten het centrum van Aalst, met scholen, winkels en openbaar vervoer op korte afstand. Dankzij de ligging langs een invalsweg zijn zowel het stadscentrum als andere steden snel bereikbaar. Ideaal voor wie centraal wil wonen, zonder in te boeten aan ruimte of rust.
Interesse of graag een bezichtiging? Contacteer june@immotijl.be of bel naar 0486 17 07 61.
In detail
Financieel
- prijs
- € 435.000
- beschikbaarheid
- Vanaf akte
- onder btw stelsel
- nee
- kadastraal inkomen
- € 1.373
- opbrengsteigendom
- nee
Ligging
- ligging
- Residentiële wijk
- omgeving school
- ja
- omgeving openbaar vervoer
- ja
- omgeving winkels
- ja
- omgeving autosnelweg
- ja
- omgeving sportcentrum
- ja
Comfort
- rolluiken
- ja
- aansluiting riolering
- ja
- aansluiting gas
- ja
- aansluiting water
- ja
- kabeltelevisie
- ja
Gebouw
- bewoonbare opp.
- 265,00 m²
- constructie
- Open
- bouwjaar
- 1991
- oriëntatie achtergevel
- West
Terrein
- perceel opp.
- 999,00 m²
- tuin
- 480,00 m²
Energie
- epc
- 200 kWh/m²
- epc unieke code
- 3686305-RES-1
- epc klasse
- B
- dubbel glas
- ja
- elektriciteitskeuring
- ja, niet conform
- verwarming
- Gas
- zonnepanelen
- ja, Fotovoltaïsche
Technieken
- elektriciteit
- ja
- telefoonbekabeling
- ja
Garages / parking
- garages / parking
- 1
- binnenparking
- 1
- buitenparking
- 2
Indeling
- woonkamer
- 49 m²
- keuken
- 19 m², Volledig geïnstalleerd
- veranda
- ja
- slaapkamers
- 2
- slaapkamer
- 20 m²
- terras
- ja
Certificaten
- asbestinventarisattest
- Ja
Downloads
Stedenbouwkundige informatie & ruimtelijke ordening
- bestemming
- Woonuitbreidingsgebied
- bouwvergunning
- ja
- verkavelingsvergunning
- ja
- voorkooprecht
- nee
- vonnissen
- nee
- g-score
- A
- p-score
- A
- kadaster sectie
- D
- kadaster nummer
- 511 W
- kadaster opp.
- 999
- bodemattest
- ja





















