- 2
- 133 m²
Prachtig nieuwbouw duplexappartement met 2 slpks en terras!
LAATSTE APPARTEMENT TE KOOP!
Binnen dit kleinschalig nieuwbouwproject bestaande uit 4 appartementen waarvan 2 duplexappartementen, is momenteel nog slechts één appartement te koop.
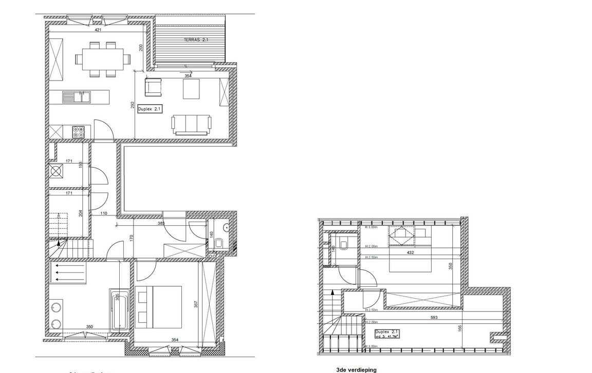
Dit laatste duplexappartement wordt voorzien van een inkomhal met gastentoilet, een mooie woonkamer met open keuken, ingerichte badkamer, 2 slaapkamers, opbergruimte/wasplaats en een zonnig terras.
Bij dit appartement hoort tevens een parkeerplaats. Bovendien is er achteraan een gemeenschappelijke tuin met terras, samen met collectieve voorzieningen zoals een fietsenstalling, vuilnisruimte en opslagruimte.
De combinatie van kwaliteit en innovatie zorgt er voor dat uw investering ook rendabel is in de toekomst. Door te werken met hernieuwbare energie (warmtepomp) wordt een E-peil bekomen die voldoet aan de strengste EPB eisen en wordt ook het BEN-label E30 behaald. Bij een stedenbouwkundige vergunning aangevraagd voor 31/12/2021 geeft de E30 score recht op een korting van de onroerende voorheffing van 50% voor 5 jaar.
Optioneel kunnen nog zonnepanelen worden bijgeplaatst waardoor zelfs een BEN E20 label wordt bekomen, waardoor er de eerste 5 jaar zelfs geen onroerende voorheffing moet betaald worden.
Het appartement zal volledig naar uw smaak en keuze kunnen worden ingericht. Na ondertekening van de koopovereenkomst volgt een eerste overleg waarbij de werkmethode toegelicht wordt. Naargelang de stand van de werken zal u nog bepaalde persoonlijke keuzes kunnen maken. Voor meer info, contacteer Tijl via tijl@immotijl.be of 0477 44 86 11.
In detail
Financieel
- prijs
- € 391.000
- beschikbaarheid
- Bij oplevering
- onder btw stelsel
- ja
- opbrengsteigendom
- nee
Ligging
- ligging
- Woonkern
- omgeving school
- ja
- omgeving openbaar vervoer
- ja
- omgeving winkels
- ja
- omgeving autosnelweg
- ja
Comfort
- videofoon
- ja
- lift
- ja
- aansluiting riolering
- ja
- aansluiting water
- ja
Gebouw
- bewoonbare opp.
- 133,00 m²
- verdieping
- 1
Terrein
- tuin
- ja
Energie
- dubbel glas
- ja
- elektriciteitskeuring
- ja, conform
- verwarming
- Vloerverwarming
- type verwarming
- Individueel
Technieken
- elektriciteit
- ja
- telefoonbekabeling
- ja
Indeling
- woonkamer
- 25 m²
- keuken
- 6 m²
- slaapkamers
- 2
- slaapkamer 1
- 14 m²
- slaapkamer 2
- 13 m²
- badkamers
- 1
- badkamer
- 11 m², type: Douche
- toiletten
- 2
- terras
- ja
- terras 1
- 6,00 m²
Stedenbouwkundige informatie & ruimtelijke ordening
- bestemming
- Woongebied met landelijk karakter
- bouwvergunning
- ja
- verkavelingsvergunning
- nee
- voorkooprecht
- nee
- vonnissen
- nee
- p-score
- B
- kadaster sectie
- D
- kadaster nummer
- 345G

















