- 2
- 124 m²
- garages
Gelijkvloers appartement met garage en gunstige ligging!
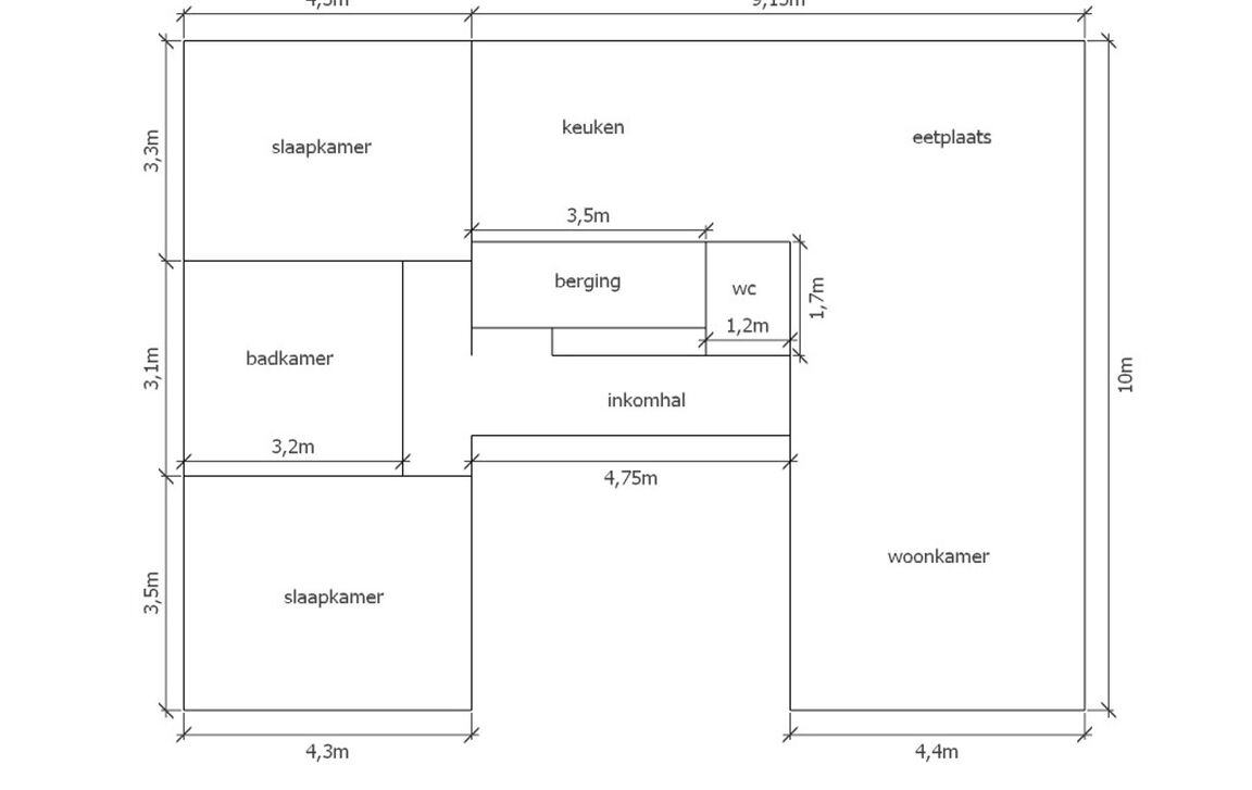
Dit ruim appartement, gelegen op het gelijkvloers van een kleinschalig gebouw, beschikt over een inkomhal met gastentoilet, een lichtrijke woonkamer met eetplaats, open keuken, een praktische berging, 2 ruime slaapkamers en een badkamer (bad en dubbele lavabo en aansluitingen voor wasmachine en droogkast).
Het appartement is voorzien van o.a. dubbele beglazing, centrale verwarming op aardgas, gunstig EPC (Label B),...
Bovendien is er een garage inbegrepen in de prijs, wat zorgt voor extra gemak. Ideaal als investering of starterswoning.
Rustig gelegen op een toplocatie in Dendermonde, op korte afstand van het centrum, winkels, scholen en met een vlotte verbinding naar belangrijke invalswegen. Voor meer info of een bezoek, contacteer Tijl via 0477 44 86 11.
In detail
Financieel
- prijs
- € 200.000
- beschikbaarheid
- Vanaf akte
- onder btw stelsel
- nee
- opbrengsteigendom
- nee
Ligging
- ligging
- Centraal
- omgeving school
- ja
- omgeving openbaar vervoer
- ja
- omgeving winkels
- ja
- omgeving autosnelweg
- ja
- omgeving sportcentrum
- ja
Comfort
- intercom
- ja
- lift
- nee
- aansluiting riolering
- ja
- aansluiting gas
- ja
- aansluiting water
- ja
Gebouw
- bewoonbare opp.
- 124,00 m²
- constructie
- Gesloten
- bouwjaar
- 2001
- oriëntatie voorgevel
- Zuid
Energie
- epc
- 172 kWh/m²
- epc unieke code
- 3518913-RES-1
- dubbel glas
- ja
- verwarming
- Gas
- type verwarming
- Individueel
Technieken
- elektriciteit
- ja
- telefoonbekabeling
- ja
Garages / parking
- garages / parking
- 1
- binnenparking
- 1
Indeling
- woonkamer
- 44 m²
- keuken
- 15 m², Geïnstalleerd
- slaapkamers
- 2
- slaapkamer 1
- 15 m²
- slaapkamer 2
- 14 m²
- badkamers
- 1
- badkamer
- 9 m², type: Douche in bad
- toiletten
- 1
- douchekamers
- 1
Downloads
Stedenbouwkundige informatie & ruimtelijke ordening
- bestemming
- Woongebied
- bouwvergunning
- ja
- verkavelingsvergunning
- nee
- voorkooprecht
- ja
- vonnissen
- nee
- g-score
- B
- p-score
- B
- kadaster sectie
- B
- kadaster nummer
- 658 W












