- 5
- 236 m²
- 170 m²
Karaktervolle stadswoning met 5 slaapkamers en buitenruimte!
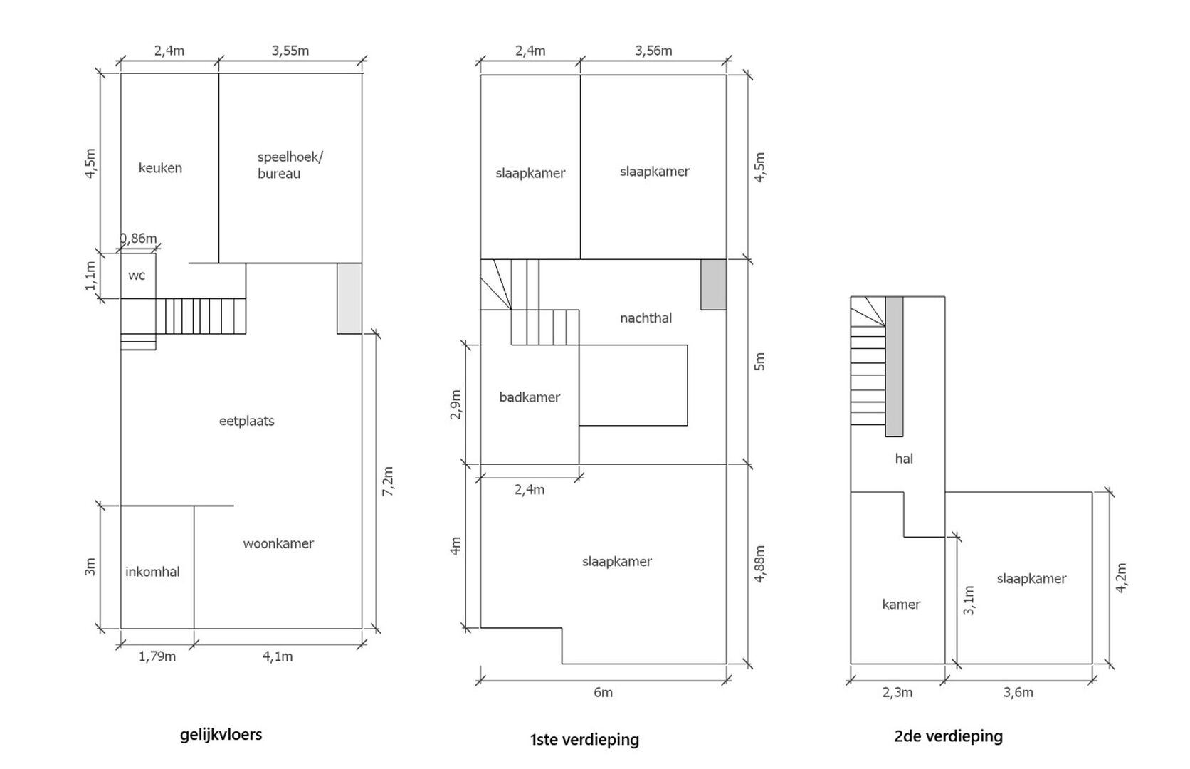
Op het gelijkvloers vindt u een inkomhal, een ruime woonkamer met eetplaats, tweede leefruimte die perfect kan dienen als speelhoek, bureau of extra zitkamer, gastentoilet en een ingerichte keuken. Een bijzonder element is het grote raam centraal in de woning dat zorgt voor een aangename natuurlijke lichtinval in vrijwel alle ruimtes.
De keuken en woonkamer geven uit op het terras met aansluitend een gezellige stadstuin.
Op de eerste verdieping bevinden zich drie slaapkamers en een badkamer met douche-in-bad, dubbele lavabo en toilet. De bovenste verdieping biedt nog twee bijkomende kamers en een hal die toegang geeft tot een prachtig dakterras.
Als extra troef is er een kelder, ideaal als opbergruimte.
De woning is voorzien van centrale verwarming op aardgas en hoogrendementsbeglazing. Er geldt geen renovatieverplichting, maar houd er wel rekening mee dat ze op te frissen is.
Authentieke elementen zoals de karaktervolle gevel, hoge plafonds en sfeervolle indeling zorgen voor een unieke uitstraling.
Gelegen in het centrum van Aalst, op wandelafstand van winkelstraten, het Vredeplein, scholen en het station. Bovendien is er een vlotte verbinding met belangrijke invalswegen zoals de E40.
Voor meer informatie en/of een bezoek, contacteer Tijl via tijl@immotijl.be of 0477 44 86 11.
In detail
Financieel
- prijs
- € 569.000
- beschikbaarheid
- Vanaf akte
- onder btw stelsel
- nee
- kadastraal inkomen
- € 1.207
- opbrengsteigendom
- nee
Ligging
- ligging
- Stadskern
- omgeving school
- ja
- omgeving openbaar vervoer
- ja
- omgeving winkels
- ja
- omgeving autosnelweg
- ja
- omgeving sportcentrum
- ja
Comfort
- rolluiken
- ja
- aansluiting riolering
- ja
- aansluiting gas
- ja
- aansluiting water
- ja
- kabeltelevisie
- ja
Gebouw
- bewoonbare opp.
- 236,00 m²
- constructie
- Gesloten
- verdieping(en)
- 2
Terrein
- perceel opp.
- 170,00 m²
- tuin
- 50,00 m²
Energie
- epc
- 316 kWh/m²
- epc unieke code
- 3558728-RES-1
- epc klasse
- D
- dubbel glas
- ja
- elektriciteitskeuring
- ja, niet conform
- verwarming
- Gas
Technieken
- elektriciteit
- ja
- telefoonbekabeling
- ja
Indeling
- kelder
- ja
- slaapkamers
- 5
- slaapkamer 1
- 26 m²
- slaapkamer 2
- 16 m²
- slaapkamer 3
- 10 m²
- slaapkamer 4
- 15 m²
- slaapkamer 5
- 9 m²
- terras
- ja
- bureau
- 15 m²
- woonkamer
- 36 m²
- keuken
- 10 m², Gedeeltelijk geïnstalleerd
Downloads
Stedenbouwkundige informatie & ruimtelijke ordening
- bouwvergunning
- nee
- verkavelingsvergunning
- nee
- voorkooprecht
- nee
- vonnissen
- nee
- g-score
- A
- p-score
- A
- kadaster sectie
- A
- kadaster nummer
- 981 B3
- kadaster opp.
- 170
- bodemattest
- ja

















