- 3
- 73 m²
Op te frissen woning met 3 slpk en terras te Aalst!
Ben je op zoek naar een karaktervolle woning die je volledig naar eigen smaak kan renoveren? Dan is deze gesloten bebouwing, gunstig gelegen nabij het centrum van Aalst, zeker het bekijken waard!
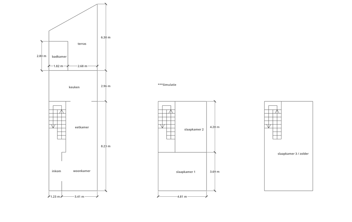
Op het gelijkvloers kom je binnen via een inkomhal die toegang biedt tot een ruime leefruimte met eetplaats, aansluitend de keuken die toegang geeft tot de deels overdekte koer/terras. Achteraan bevindt zich de badkamer met ligbad, toilet en lavabo, met daarnaast aansluiting voor wasmachine. Onder de trap is er toegang tot een praktische ruime kelder.
Op de eerste verdieping bevinden zich twee ruime slaapkamers. Via een vaste trap bereik je de zolderverdieping, die dankzij de oppervlakte en hoogte perfect geschikt is om één of meerdere extra slaapkamers te creëren.
De woning is rustig gelegen in een aangename woonbuurt, op wandelafstand van scholen, winkels en openbaar vervoer. De centrale ligging maakt het een ideale uitvalsbasis voor gezinnen, koppels of investeerders.
Met de juiste renovatie kan je deze woning omvormen tot een gezellige en hedendaagse thuis.
Benieuwd naar de mogelijkheden? Neem alvast een kijkje via onze virtuele rondleiding op de website. Voor meer info en/of een bezoek, contacteer ons via aalst@immotijl.be of 053 42 46 99.
In detail
Financieel
- prijs
- € 179.000
- beschikbaarheid
- Vanaf akte
- onder btw stelsel
- nee
- kadastraal inkomen
- € 487
- opbrengsteigendom
- nee
Ligging
- ligging
- Centraal
- omgeving school
- ja
- omgeving openbaar vervoer
- ja
- omgeving winkels
- ja
- omgeving autosnelweg
- ja
- omgeving sportcentrum
- ja
Comfort
- aansluiting riolering
- ja
- aansluiting gas
- ja
- aansluiting water
- ja
- kabeltelevisie
- ja
Gebouw
- constructie
- Gesloten
- bouwjaar
- 1930
- gevelbreedte
- 5,00 m
- oriëntatie achtergevel
- Noord
- oriëntatie voorgevel
- Zuid
Terrein
- perceel opp.
- 73,00 m²
- breedte aan de straatkant
- 5,00 m
- tuin
- nee
Energie
- epc
- 515 kWh/m²
- epc unieke code
- 0003620728-RES-1
- epc klasse
- F
- verwarming
- Gaskachels
- type verwarming
- Individueel
Technieken
- elektriciteit
- ja
- telefoonbekabeling
- ja
Indeling
- kelder
- ja
- slaapkamers
- 3
- slaapkamer 1
- 18 m²
- slaapkamer 2
- 13 m²
- slaapkamer 3
- 31 m²
- terras
- ja
- terras 1
- 15,00 m²
- woonkamer
- 28 m²
- keuken
- 14 m², VS gedeeltelijk geïnstalleerd
Stedenbouwkundige informatie & ruimtelijke ordening
- bestemming
- Woongebied
- bouwvergunning
- ja
- verkavelingsvergunning
- nee
- voorkooprecht
- nee
- vonnissen
- nee
- g-score
- A
- p-score
- A
- kadaster sectie
- E
- kadaster nummer
- 509X5
- kadaster opp.
- 73
- renovatieverplichting
- JaDit pand kan onderheven zijn aan de renovatieverplichting die door de vlaamse overheid word opgelegd voor residentiele gebouwen. Voor meer informatie kan u de website van het Vlaams Energie- en Klimaatagentschap contacteren: https://www.vlaanderen.be/een-woning-kopen/renovatieverplichting-voor-residentiele-gebouwen





















