- 3
- 130 m²
Mooie woning met 3 kamers in hartje Aalst!
Mooie woning met 3 kamers in hartje Aalst!
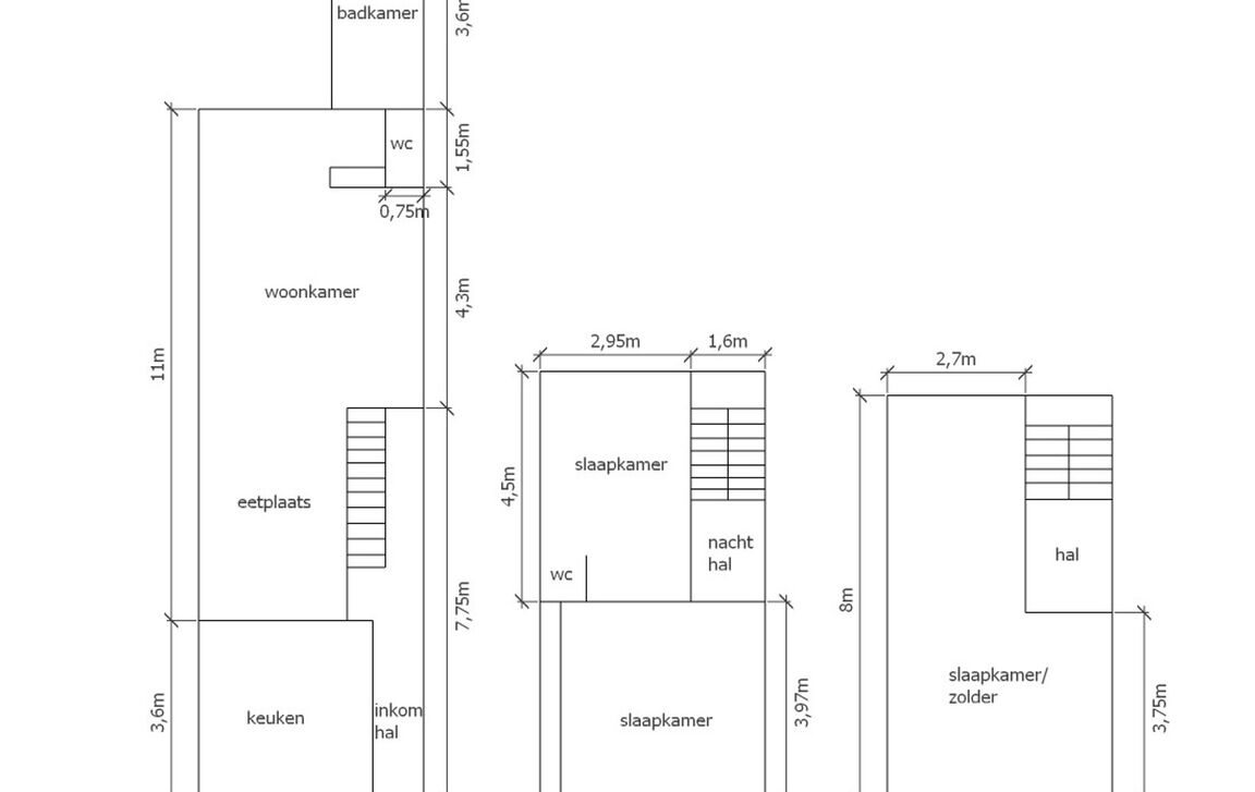
Deze woning beschikt op het gelijkvloers over een inkomhal, ingerichte keuken, charmante woonkamer met eetplaats en een badkamer (douche, lavabomeubel) met apart toilet. Op de 1ste verdieping vindt men 2 slaapkamers waarvan 1 met een extra toilet. Op de bovenste verdieping is nog een extra kamer terug te vinden (ideaal als 3de slaapkamer of hobbyruimte). Achteraan bevindt zich de leuke stadstuin!
Deze woning is goed gelegen vlakbij het centrum van Aalst. Winkels, scholen, openbaar vervoer en het station zijn allen op wandelafstand, waardoor je veel voorzieningen nabij hebt zonder gebruik van de auto. De verbindingen naar omliggende gemeenten en belangrijke uitvalswegen zijn vlot, wat wooncomfort en mobiliteit verhoogt.
Voor meer info en/of een bezoek ter plaatse, contacteer ons via steffen@immotijl.be of 0472 28 41 65.
In detail
Financieel
- prijs
- € 320.000
- beschikbaarheid
- Vanaf akte
- onder btw stelsel
- nee
- kadastraal inkomen
- € 614
- opbrengsteigendom
- nee
Ligging
- ligging
- Centraal
- omgeving school
- ja
- omgeving openbaar vervoer
- ja
- omgeving winkels
- ja
- omgeving autosnelweg
- ja
- omgeving sportcentrum
- ja
Comfort
- rolluiken
- ja
- aansluiting riolering
- ja
- aansluiting gas
- ja
- aansluiting water
- ja
- kabeltelevisie
- ja
Gebouw
- constructie
- Gesloten
- bouwjaar
- 1959
- oriëntatie achtergevel
- Oost
Terrein
- perceel opp.
- 130,00 m²
- tuin
- ja
Energie
- epc
- 274 kWh/m²
- epc unieke code
- 20251022-0003715343-RES-1
- epc klasse
- C
- dubbel glas
- ja
- elektriciteitskeuring
- ja, conform
Technieken
- elektriciteit
- ja
- telefoonbekabeling
- ja
Indeling
- woonkamer
- 31 m²
- keuken
- 12 m², Volledig geïnstalleerd
- slaapkamers
- 3
- slaapkamer 1
- 16 m²
- slaapkamer 2
- 13 m²
- slaapkamer 3
- 27 m²
- terras
- ja
Stedenbouwkundige informatie & ruimtelijke ordening
- bestemming
- Woongebied
- bouwvergunning
- nee
- verkavelingsvergunning
- nee
- voorkooprecht
- nee
- vonnissen
- nee
- g-score
- B
- p-score
- B
- kadaster sectie
- C
- kadaster nummer
- 1018 E3
- kadaster opp.
- 130
- bodemattest
- ja



















