- 3
- 440 m²
Instapklare ruime woning met 3 slk nabij centrum Herdersem!
Deze verzorgde woning is ideaal voor wie op zoek is naar een instapklare gezinswoning in een rustige, kindvriendelijke omgeving op korte afstand van het centrum van Herdersem.
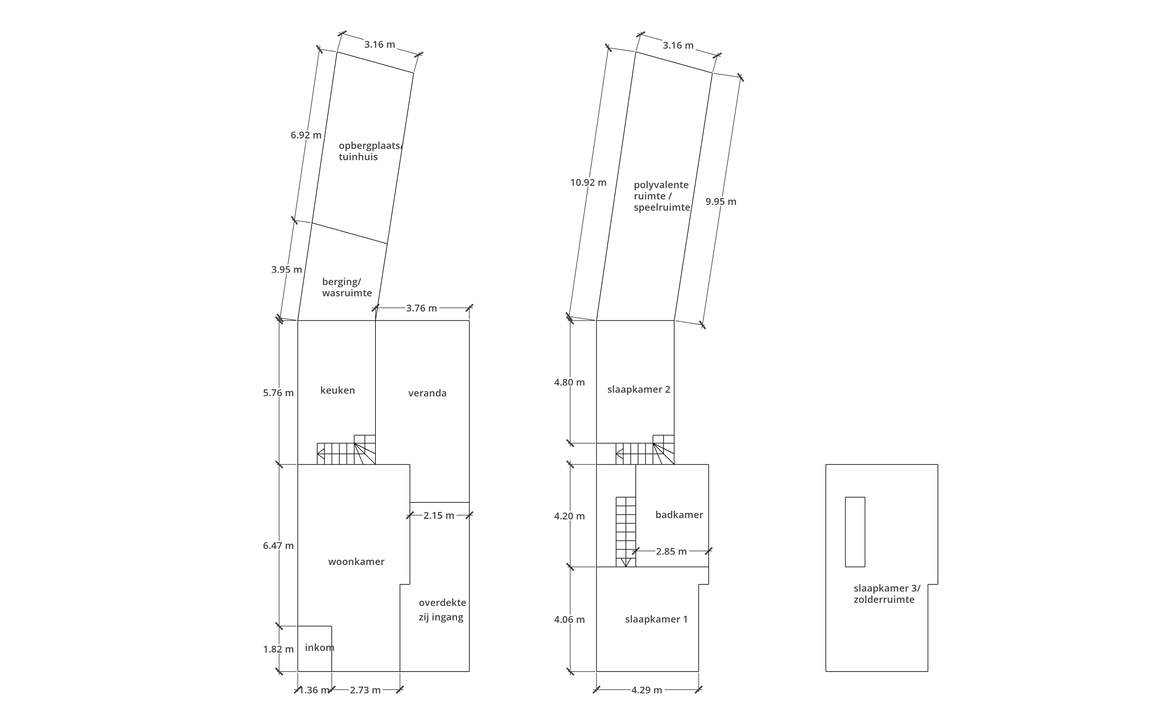
Op het gelijkvloers vindt u een inkomhal, een lichtrijke leefruimte met eetplaats en een keuken met aansluitend een praktische berging/wasplaats en een douchekamer met toilet. Verder is er een ruime veranda die uitkijkt op de zonnige tuin met terras. De tuin is bereikbaar via een overdekt zijpoortje, ideaal voor fietsen of vuilnisbakken.
Aansluitend aan de woning via de tuin bevindt zich een ruim werkhuis met een oppervlakte van 55 m², verdeeld over twee verdiepingen met een vaste trap. Perfect als hobbyruimte, speelruimte of extra bergruimte.
Op de eerste verdieping bevinden zich twee slaapkamers en een badkamer met inloopdouche, dubbel lavabomeubel en toilet. De tweede verdieping, bereikbaar via een vaste trap, herbergt de derde slaapkamer/zolderruimte.
Parkeren kan vlot in de straat.
Deze woning is uitstekend gelegen nabij scholen, openbaar vervoer en met een vlotte verbinding naar het centrum van Aalst.
Benieuwd naar deze ruime woning? Neem alvast een kijkje via het virtuele bezoek op onze website!
Voor meer info of een bezoek, contacteer ons via steffen@immotijl.be of bel 053 42 46 99.
In detail
Financieel
- prijs
- € 349.000
- beschikbaarheid
- Vanaf akte
- onder btw stelsel
- nee
- kadastraal inkomen
- € 527
- opbrengsteigendom
- nee
Ligging
- ligging
- Centraal
- omgeving school
- ja
- omgeving openbaar vervoer
- ja
- omgeving winkels
- ja
- omgeving autosnelweg
- ja
- omgeving sportcentrum
- ja
- omgeving strand
- ja
Comfort
- aansluiting riolering
- ja
- aansluiting gas
- ja
- aansluiting water
- ja
- kabeltelevisie
- ja
Gebouw
- constructie
- Halfopen
- bouwjaar
- 1933
- gevelbreedte
- 5,00 m
- oriëntatie achtergevel
- Oost
- oriëntatie voorgevel
- West
Terrein
- perceel opp.
- 440,00 m²
- breedte aan de straatkant
- 7,50 m
- tuin
- ja
Energie
- epc
- 362 kWh/m²
- epc unieke code
- 0003623627-RES-1
- epc klasse
- D
- dubbel glas
- ja
- verwarming
- Gas
- type verwarming
- Individueel
Technieken
- elektriciteit
- ja
- telefoonbekabeling
- ja
Indeling
- kelder
- ja
- slaapkamers
- 3
- slaapkamer 1
- 17 m²
- slaapkamer 2
- 15 m²
- slaapkamer 3
- 30 m²
- terras
- ja
- terras 1
- 40,00 m²
- woonkamer
- 34 m²
- keuken
- 18 m², VS geïnstalleerd
- veranda
- ja
Stedenbouwkundige informatie & ruimtelijke ordening
- bestemming
- Woongebied
- verkavelingsvergunning
- nee
- voorkooprecht
- nee
- vonnissen
- nee
- g-score
- A
- p-score
- A
- kadaster sectie
- B
- kadaster nummer
- 857
- kadaster opp.
- 440































