- 3
- 200 m²
- 616 m²
- garages
Ruime bungalow met garage en uitbreidbare zolder te Lebbeke!
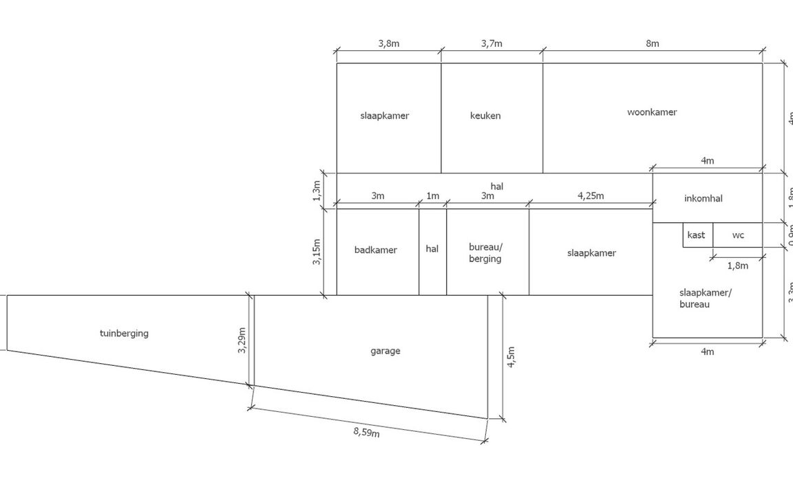
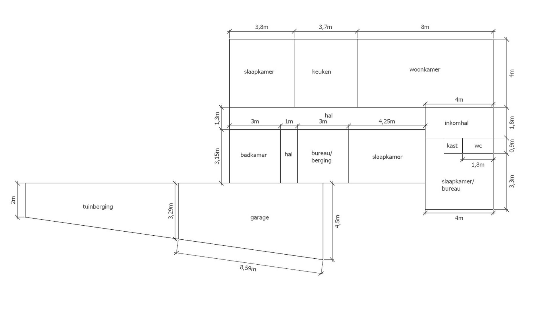
Deze open bebouwing verwelkomt u met een inkomhal met gastentoilet. De lichtrijke woonkamer met karaktervolle schouw sluit naadloos aan op de ruime keuken met eetplaats. Daarnaast beschikt de woning over drie comfortabele slaapkamers, een bureau en een badkamer met bad, douche, lavabomeubel en toilet.
Achteraan geniet u van een zuidoostgerichte tuin met overdekt terras en ruime tuinberging. Dankzij het poortje aan de straatzijde is de tuin ook langs buiten toegankelijk, wat extra praktisch comfort biedt. Een bijkomende troef zijn de oprit en de inpandige garage met automatische poort.
De zolder biedt bovendien interessante uitbreidingsmogelijkheden, bijvoorbeeld om extra slaapkamers te creëren.
Hoewel de woning renovatie vraagt, vormt ze de perfecte basis om volledig naar eigen smaak en wensen te moderniseren. Positief is dat er reeds dubbele beglazing, rolluiken en elektrische verwarming aanwezig zijn. Neem alvast een kijkje via de virtuele rondleiding!
De woning is gunstig gelegen nabij het centrum van Wieze, op wandelafstand van scholen en openbaar vervoer. Bovendien geniet u van een uitstekende verbinding richting Aalst en de omliggende gemeenten.
Interesse of graag een bezichtiging? Contacteer june@immotijl.be of bel naar 0486 17 07 61.
In detail
Financieel
- prijs
- € 349.000
- beschikbaarheid
- Vanaf akte
- onder btw stelsel
- nee
- kadastraal inkomen
- € 979
- opbrengsteigendom
- nee
Ligging
- ligging
- Woonkern
- omgeving school
- ja
- omgeving openbaar vervoer
- ja
- omgeving winkels
- ja
Comfort
- rolluiken
- ja
- aansluiting riolering
- ja
- aansluiting water
- ja
- kabeltelevisie
- ja
Gebouw
- bewoonbare opp.
- 200,00 m²
- constructie
- Open
- oriëntatie achtergevel
- Zuidoost
Terrein
- perceel opp.
- 616,00 m²
- tuin
- 75,00 m²
Energie
- epc
- 666 kWh/m²
- epc unieke code
- 3632456-RES3
- epc klasse
- F
- dubbel glas
- ja
- elektriciteitskeuring
- ja, niet conform
- verwarming
- Elektrisch
Technieken
- elektriciteit
- ja
- telefoonbekabeling
- ja
Garages / parking
- garages / parking
- 1
- binnenparking
- 1
- buitenparking
- 3
Indeling
- bureau
- 9 m²
- woonkamer
- 32 m²
- keuken
- 14 m², Geïnstalleerd
- slaapkamers
- 3
- slaapkamer 1
- 15 m²
- slaapkamer 2
- 13 m²
- slaapkamer 3
- 13 m²
- terras
- ja
Certificaten
- asbestinventarisattest
- Ja
Downloads
Stedenbouwkundige informatie & ruimtelijke ordening
- bestemming
- Woongebied
- bouwvergunning
- nee
- verkavelingsvergunning
- nee
- voorkooprecht
- nee
- vonnissen
- nee
- g-score
- A
- p-score
- A
- kadaster sectie
- A
- kadaster nummer
- 769F
- kadaster opp.
- 616
- renovatieverplichting
- JaDit pand kan onderheven zijn aan de renovatieverplichting die door de vlaamse overheid word opgelegd voor residentiele gebouwen. Voor meer informatie kan u de website van het Vlaams Energie- en Klimaatagentschap contacteren: https://www.vlaanderen.be/een-woning-kopen/renovatieverplichting-voor-residentiele-gebouwen
- bodemattest
- ja