- 3
- 105 m²
- 190 m²
- garages
Goed gelegen woning met tuin en garage te Moorsel!
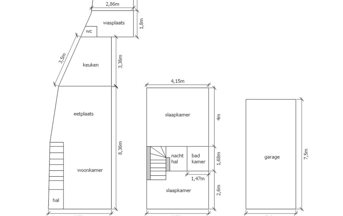
Deze woning beschikt op het gelijkvloers over een inkomhal, een woonkamer met eetplaats, keuken met aangrenzende berging/wasplaats en een apart toilet. Op de eerste verdieping bevinden zich twee ruime slaapkamers en een badkamer (lavabo, douche-in-bad en toilet). Er is tevens een zolder aanwezig (valluik) waar nog extra kamers gecreëerd kunnen worden.
Vanuit de keuken is er toegang tot de zonnige tuin met terras.
Een extra troef is de ruime garage achteraan, bereikbaar via de achterzijde. Bovendien kan er ook voor de woning eenvoudig geparkeerd worden.
De woning beschikt grotendeels over dubbele beglazing. Mits de nodige opknapwerken, vormt dit pand een uitstekende opportuniteit voor zowel investeerders als starters. De woning is momenteel verhuurd.
Deze woning biedt tal van mogelijkheden en is gunstig gelegen nabij het centrum van Moorsel/Aalst, met een vlotte aansluiting op de belangrijkste verbindingswegen. Openbaar vervoer bevindt zich op wandelafstand, net zoals lokale winkels, scholen en wandelroutes. Voor meer info en/of een bezoek ter plaatse, contacteer Tijl via tijl@immotijl.be of 0477 44 86 11.
In detail
Financieel
- prijs
- € 215.000
- beschikbaarheid
- Mits inachtneming huurders
- onder btw stelsel
- nee
- kadastraal inkomen
- € 287
- opbrengsteigendom
- nee
Ligging
- ligging
- Woonkern
- omgeving school
- ja
- omgeving openbaar vervoer
- ja
- omgeving winkels
- ja
- omgeving autosnelweg
- ja
- omgeving sportcentrum
- ja
Comfort
- aansluiting riolering
- ja
- aansluiting water
- ja
- kabeltelevisie
- ja
Gebouw
- bewoonbare opp.
- 105,00 m²
- constructie
- Gesloten
Terrein
- perceel opp.
- 190,00 m²
- tuin
- 100,00 m²
Energie
- epc
- 584 kWh/m²
- epc unieke code
- 3661761-RES-1
- epc klasse
- F
- dubbel glas
- ja
- elektriciteitskeuring
- ja, niet conform
- verwarming
- Elektrisch
Technieken
- elektriciteit
- ja
- telefoonbekabeling
- ja
Garages / parking
- garages / parking
- 1
- binnenparking
- ja
- buitenparking
- 2
Indeling
- woonkamer
- 33 m²
- keuken
- 10 m², Gedeeltelijk geïnstalleerd
- slaapkamers
- 3
- slaapkamer 1
- 16 m²
- slaapkamer 2
- 10 m²
- terras
- ja
Certificaten
- asbestinventarisattest
- Ja
Stedenbouwkundige informatie & ruimtelijke ordening
- bestemming
- Woongebied
- bouwvergunning
- nee
- verkavelingsvergunning
- nee
- voorkooprecht
- nee
- vonnissen
- nee
- g-score
- A
- p-score
- D
- kadaster sectie
- D
- kadaster nummer
- 634 L2/ 634 G2
- kadaster opp.
- 190
- renovatieverplichting
- JaDit pand kan onderheven zijn aan de renovatieverplichting die door de vlaamse overheid word opgelegd voor residentiele gebouwen. Voor meer informatie kan u de website van het Vlaams Energie- en Klimaatagentschap contacteren: https://www.vlaanderen.be/een-woning-kopen/renovatieverplichting-voor-residentiele-gebouwen
- bodemattest
- ja









