- 4
- 293 m²
- 1.087 m²
- garages
Ruime woning met prachtig, landelijk uitzicht!
In het landelijke Wichelen, aan de verbindingsweg Paepestraat 25, vind je deze ruime gezinswoning met een verrassend volume en veelzijdig karakter. De woning is gelegen op een perceel van zo'n 1087 m², dat momenteel wordt opgesplitst door een landmeter (zie plan pereel 1). De exacte oppervlakte van het af te splitsen perceel zal definitief worden vastgelegd bij akte. De woning ligt in agrarisch gebied; de bestaande woonfunctie is vergund.
Achter de woning strekt zich een prachtig groen landschap uit, met weidse zichten over de omliggende velden. Op het terras aansluitend aan de masterbedroom geniet je in alle rust van dit uniek uitzicht. Ondanks de ligging aan deze verbindingsweg, biedt het perceel achteraan net die oase van rust en openheid die zelden te vinden is.
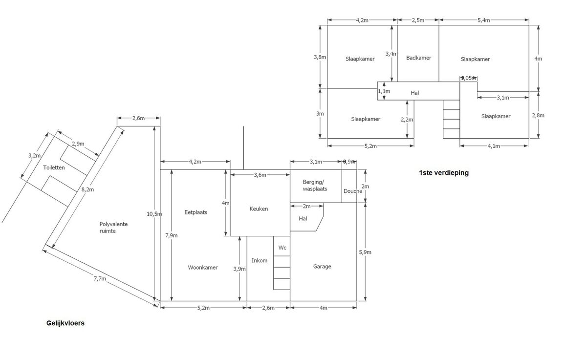
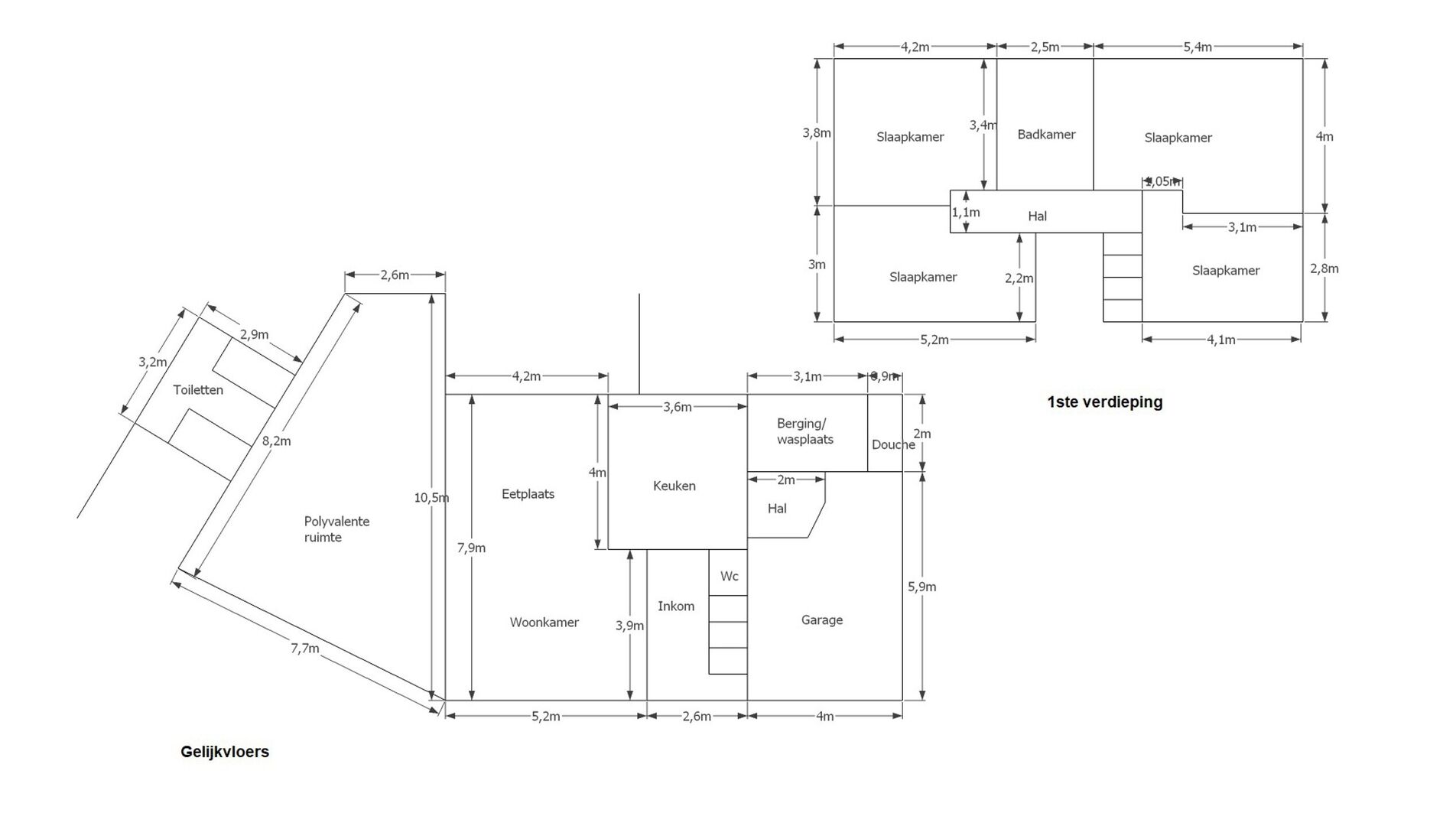
De woning beschikt op het gelijkvloers over een inkomhal met gastentoilet, een lichtrijke woonkamer met eetplaats, ingerichte keuken, een handige berging met douche en een inpandige garage. Een extra troef is de polyvalente ruimte met aparte inkom en sanitair. Deze ruimte wordt momenteel uitgebaat als tijdelijk pop-up café en leent zich perfect voor vrije beroepen, creatieve projecten of een commerciële invulling, mits naleving van de geldende regelgeving. Op de verdieping vindt men 4 slaapkamers en een badkamer (hoekbad, douche en lavabomeubel). Er is tevens een zolder aanwezig die nog extra uitbreidingsmogelijkheden biedt.
Dankzij de centrale ligging nabij het station van Schellebelle en vlotte verbindingen richting Wetteren, Aalst en Dendermonde, is dit ook een logistiek interessante locatie voor wie werk en gezin wil combineren. Voor meer info en/of een bezoek, contacteer ons via june@immotijl.be of 0486 17 07 61.
In detail
Financieel
- prijs
- € 625.000
- beschikbaarheid
- Vanaf akte
- onder btw stelsel
- nee
- opbrengsteigendom
- nee
Ligging
- ligging
- Landelijk
- omgeving school
- ja
- omgeving openbaar vervoer
- ja
- omgeving winkels
- ja
Comfort
- aansluiting riolering
- ja
- aansluiting water
- ja
- kabeltelevisie
- ja
Gebouw
- bewoonbare opp.
- 293,00 m²
- constructie
- Open
- bouwjaar
- 1992
- oriëntatie achtergevel
- Oost
Terrein
- perceel opp.
- 1.087,00 m²
- tuin
- ja
Energie
- epc
- 259 kWh/m²
- epc unieke code
- 3571061-RES-1
- epc klasse
- C
- verwarming
- Elektrisch
- zonnepanelen
- ja, Fotovoltaïsche
Technieken
- elektriciteit
- ja
- telefoonbekabeling
- ja
Garages / parking
- garages / parking
- 1
- binnenparking
- 1
- buitenparking
- 3
Indeling
- woonkamer
- 38 m²
- keuken
- 14 m², Geïnstalleerd
- slaapkamers
- 4
- slaapkamer 1
- 15 m²
- slaapkamer 2
- 12 m²
- slaapkamer 3
- 21 m²
- slaapkamer 4
- 11 m²
- terras
- ja
Downloads
Stedenbouwkundige informatie & ruimtelijke ordening
- bestemming
- Agrarisch gebied
- bouwvergunning
- ja
- verkavelingsvergunning
- nee
- voorkooprecht
- ja
- vonnissen
- nee
- g-score
- D
- p-score
- D
- kadaster opp.
- 1087
- bodemattest
- ja




















