- 3
- 421 m²
- garages
Rustig gelegen open bebouwing met twee garages!
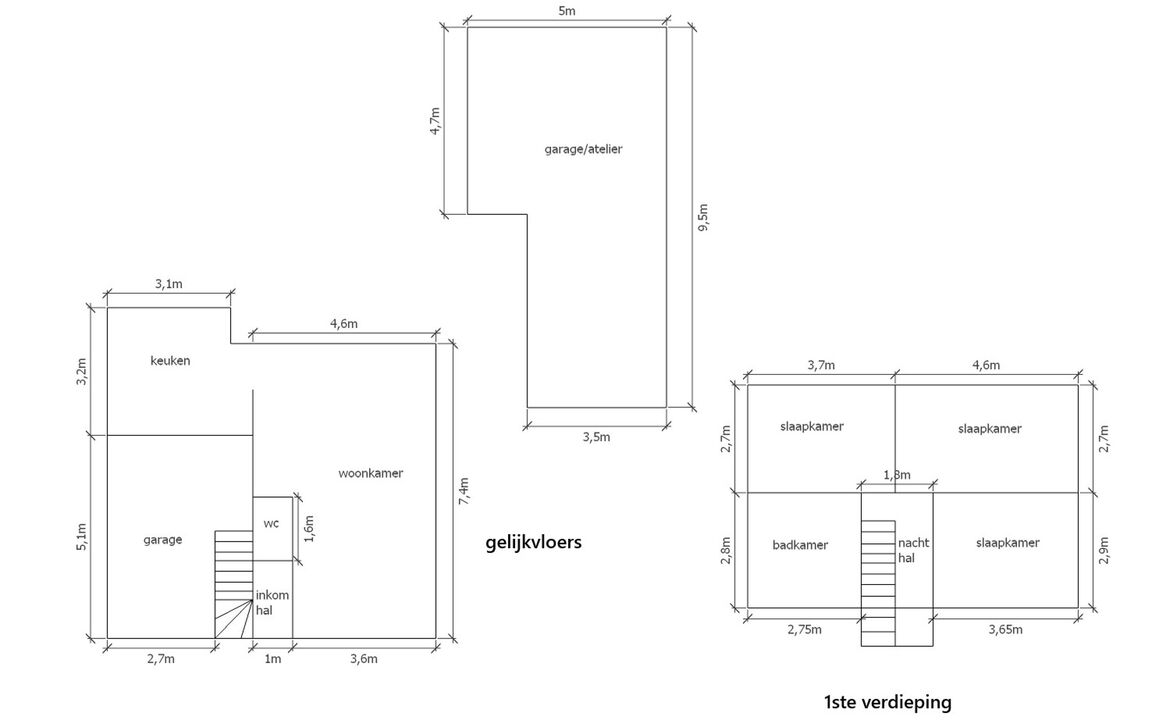
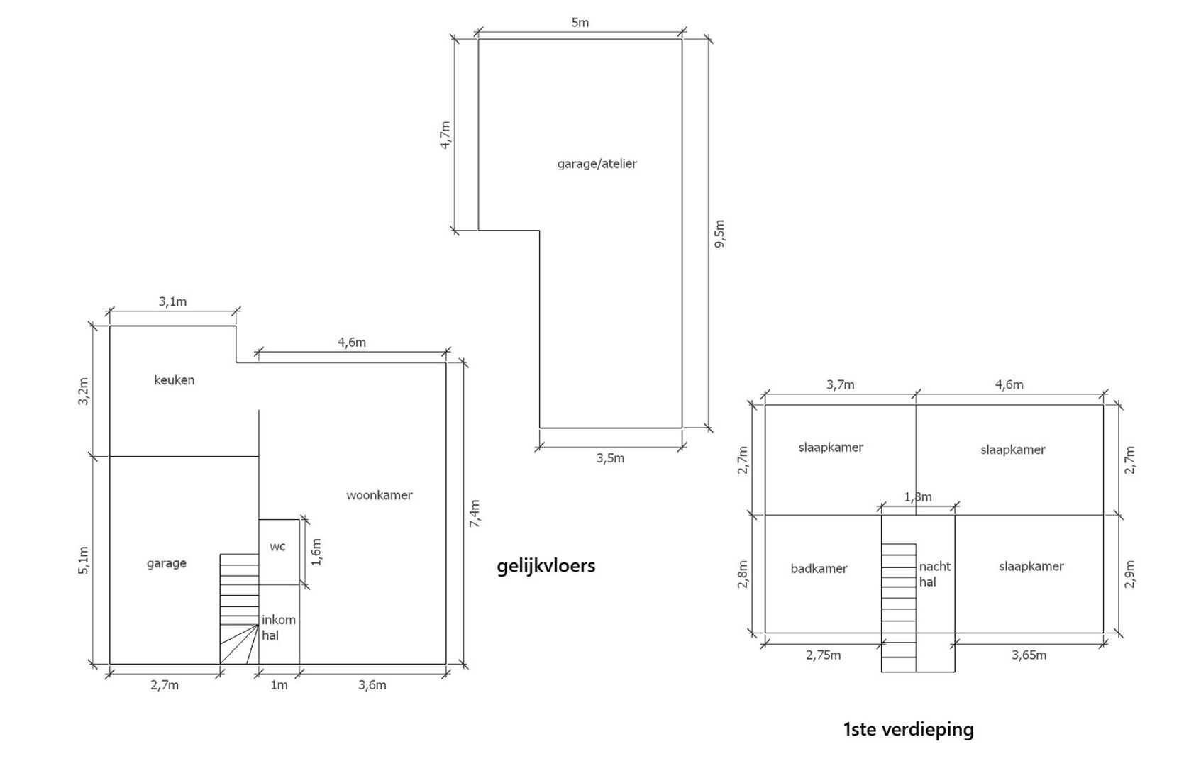
Deze vrijstaande woning biedt op het gelijkvloers een inkomhal met gastentoilet. De lichtrijke woonkamer met eetplaats straalt warmte en gezelligheid uit dankzij de sfeervolle haard. Aansluitend bevindt zich de ruime keuken met zicht op de tuin en een handige inpandige garage.
Op de verdieping liggen drie slaapkamers en een badkamer met toilet, douche, bad en lavabomeubel. De zolder, bereikbaar via een valluik, biedt extra opbergruimte.
Langs de woning is bijkomende parkeergelegenheid voorzien. Daarnaast is er nog een aparte garage met extra bergruimte, ideaal als werkplaats of atelier. Achteraan ligt een zonnige, mooi aangelegde tuin met terras en tuinberging, waar het aangenaam vertoeven is. De tuin is bovendien toegankelijk via een zijpoort!
De woning is uitgerust met dubbele beglazing en centrale verwarming op aardgas met een condensatieketel.
De ligging in Erembodegem vormt een belangrijke troef. De woning bevindt zich in een kindvriendelijke buurt met voornamelijk plaatselijk verkeer en voldoende parkeergelegenheid in de straat. Bovendien is de bereikbaarheid uitstekend, met winkels, scholen en openbaar vervoer in de nabije omgeving en vlotte verbindingen naar Aalst, Brussel en Gent.
Heeft u interesse of wenst u meer informatie? Neem gerust contact op met Tijl via tijl@immotijl.be of 0477 44 86 11.
In detail
Financieel
- prijs
- € 399.000
- beschikbaarheid
- Vanaf akte
- onder btw stelsel
- nee
- kadastraal inkomen
- € 1.189
- opbrengsteigendom
- nee
Ligging
- ligging
- Residentiële wijk
- omgeving school
- ja
- omgeving openbaar vervoer
- ja
- omgeving winkels
- ja
- omgeving autosnelweg
- ja
- omgeving sportcentrum
- ja
Comfort
- videofoon
- ja
- aansluiting riolering
- ja
- aansluiting gas
- ja
- aansluiting water
- ja
- kabeltelevisie
- ja
Gebouw
- constructie
- Open
- bouwjaar
- 1987
- oriëntatie achtergevel
- Zuidoost
Terrein
- perceel opp.
- 421,00 m²
- tuin
- 100,00 m²
Energie
- epc
- 283 kWh/m²
- epc unieke code
- 3703943-RES-1
- epc klasse
- C
- dubbel glas
- ja
- verwarming
- Gas
Technieken
- elektriciteit
- ja
- telefoonbekabeling
- ja
Garages / parking
- garages / parking
- 2
- binnenparking
- 2
- buitenparking
- 3
Indeling
- woonkamer
- 30 m²
- keuken
- 10 m², Volledig geïnstalleerd
- slaapkamers
- 3
- slaapkamer 1
- 10 m²
- slaapkamer 2
- 12 m²
- slaapkamer 3
- 10 m²
- terras
- ja
Stedenbouwkundige informatie & ruimtelijke ordening
- bestemming
- Woongebied
- bouwvergunning
- ja
- verkavelingsvergunning
- ja
- voorkooprecht
- nee
- vonnissen
- nee
- g-score
- A
- p-score
- A
- kadaster sectie
- A
- kadaster nummer
- 561 P
- kadaster opp.
- 421
- bodemattest
- ja





















